
Metallsikkerhetsgjerder er produsert av Liweiyuan, en profesjonell produsent av kinesisk stålstruktur. Fabrikk direkte salgsgaranti garantert kvalitet. De er mye brukt som sikkerhetsenheter for vegger, gjerder og innkapslinger. Vi ønsker din henvendelse velkommen!
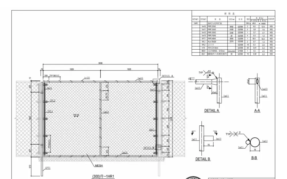
De viktigste strukturelle komponentene i Liweiyuans metallsikkerhetsgjerder inkluderer rammen, langsgående bjelker, kontakter og støtteposter. Rammen er først og fremst konstruert av en rekke metallmaterialer og kommer i en rekke former for å imøtekomme individuelle designbehov. Rammematerialer inkluderer først og fremst galvanisert stålark, galvanisert rundt rør, galvanisert firkantet rør og kjettinggjerde. Disse materialene er valgt for deres holdbarhet og korrosjonsmotstand. De langsgående bjelkene er festet mellom gjerdrammer, og forbedrer deres styrke og seighet, noe som gjør dem mer stabile og pålitelige.
Kontakter er viktige komponenter som kobler gjerdet til støttepostene. Vi bruker galvanisert stålark, galvanisert rundt stål og galvaniserte rør. Disse materialene gir utmerket vind- og jordskjelvresistens, og forhindrer løsring under bruk og sikrer gjerdets sikkerhet og stabilitet. Støtteinnleggene er de primære støttende komponentene i gjerdet. Vi kan bruke en rekke støtteposter avhengig av plassering, behov og miljø. Materialene som brukes til disse stolpene må imidlertid ha høy stabilitet, vind- og jordskjelvmotstand og holdbarhet for å sikre sikkerhet under bruk.


Våre metallsikkerhetsgjerder er avtakbare og gjenbrukbare. Deres høyde-, bredde- og tilkoblingsmetoder kan utformes og produseres for å passe til kundebehov og applikasjonsscenarier, noe som sikrer sikkerhet og miljøvennlighet.


Våre metallsikkerhetsgjerder skiller effektivt byggeplasser fra andre bygninger og veier, og skaper et isolert arbeidsområde. De kan demonteres og settes sammen etter behov.
Workshopisolasjonsnett brukes ofte i industrielle verksteder som sikkerhetsutstyr, først og fremst for å avgrense arbeidsområdene, isolere farlig utstyr og beskytte arbeidere.
Våre produkter kan også brukes som innendørs lager fekting for å beskytte innendørs arbeidsområder. De er mye brukt i forskjellige lagringsanlegg, for eksempel lager, logistikksentre og fabrikker.
Vanlige størrelser for Liweiyuan metallsikkerhetsgjerder inkluderer: 2 meter lang med 1,5 meter høy; 2,5 meter lang med 2 meter høy; og 3 meter lang med 2,5 meter høy. Tilpassede størrelser er tilgjengelige. Stålmaterialer inkluderer Q235B, Q355B, A36 og A572, som oppfyller europeiske og amerikanske standarder.
